Вы оставили сообщение в этой теме Продается современное коммерческое ПОМЕЩЕНИЕ 720 КВ.М на ЗЕМЕЛЬНОМ УЧАСТКЕ 70 СОТОК в г.Кемин

320 000 $, USD
≈ 1 009 888,51 ₪, ILS
Загальна площа примищення
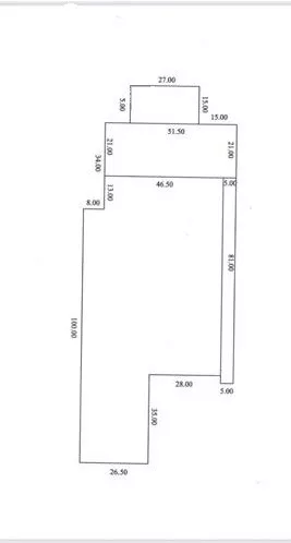
720 м²
Кількість кімнат
8
Продается современное коммерческое ПОМЕЩЕНИЕ 720 КВ.М на ЗЕМЕЛЬНОМ УЧАСТКЕ 70 СОТОК
В Г. КЕМИН в районе автовокзала на второй линии от трассы Бишкек-Балыкчы.
 
ЦЕНА: 320 000 долларов, торг
 
♦️ПРАВА НА УЧАСТОК: право собственности, красная книга. Участок сквозной, имеется выезд на 2 улицы.
КОММУНИКАЦИИ: центральное водоснабжение, электричество 3 фазы, разрешенная мощность 20 кВт, септик 3 шт., интернет, система видеонаблюдения на 16 зон.
Котельная – на твердом топливе. На 1-м этаже теплые полы, 2-й этаж – радиаторы
На территории имеется кухня, санузел с прачечной, навес площадью 450 кв.м из металлоконструкций высотой 6 м с воротами для въезда фур высотой 4,2 м.
Помещение можно использовать под швейный цех, склады, гостиницу, СТО и другие коммерческие цели.
Напоминаю, удаленные районы имеют огромную перспективу роста стоимости!
 
Tel, WApp. 0551 211 209 ( русский язык)  
                   0555 662 660 ( кыргыз тили)
Контактна особа: Grand City
320 000 $, USD
≈ 1 009 888,51 ₪, ILS
Киргизія, Бішкек
ХХХ ХХХ-ХХ-ХХ показати номер

На Taki.Sale з грудня 2022р.

Номер оголошення 318067
Розміщено: 30 травня 2025р.
Оновлене: позавчора
Актуально до: 14 січня 2027р.
Переглядів: 630

Підвищити ефективність
Поділитися:
Повідомити про порушення

Наші рекомендації (VIP)

Цей сайт використовує "печеньки"(cookies). Ми не передаємо ваші дані, вони використовуються тільки для технічних цілей і зручності користування сайтом (місце розташування, останній вибір, обране). Більш докладно в Умовах використання
Прийняти і Закрити